ItalianoEnglish
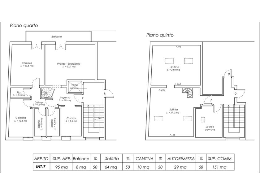
3 Camere 2 Bagni 2 Box/Posti auto 151 m2
Caratteristiche principali
Codice
CA505
Prezzo
422.000,00 EUR
Classe
D
Locali
5
Altre caratteristiche e accessori
Stato Immobile
Ristrutturato
Grado
Signorile
Posizione
Centro
Panorama
Vista Aperta
Piano
Quarto
Orientamento
Sud Nord
Totale Piani
Cinque
Lati Liberi
2
Giardino
No
Arredi
Non Arredato
Tipo Soggiorno
Salone
Tipo Cucina
Abitabile
Riscaldamento
Centralizzato
Tipo Riscaldam.
Caldaia
Tipo Impianto
Radiatori
Acqua Calda
Autonoma
Raffrescamento
Predisposizione
Infissi
PVC Triplo Vetro
Serramenti
Nuovo
Persiana
Tapparella PVC
Pavim. Giorno
Ceramica
Pavim. Notte
Ceramica
Pavim. Cucina
Ceramica
Pavim. Bagno
Ceramica
Accesso Disabili
Nessuna Barriera
Accessori
Aria Condizionata, Ascensore, Cancello Elettrico, Doppi Vetri, Impianto Satellitare, Lavanderia, Porta Blindata, Ripostiglio
Proponiamo nel cuore di Formigine, al quarto e ultimo piano con ascensore, appartamento su due livelli completamente ristruttarato così composto:
ingresso, ampio soggiorno con balcone, cucina abitabile, due camere, due bagni, ripostiglio (uso lavanderia), secondo livello altri due locali mansardati.
Completano la proprietà un garage doppio al piano interrato e una cantina.
Palazzina completamente rifatta esternamente.
Cookie preference