ItalianoEnglish
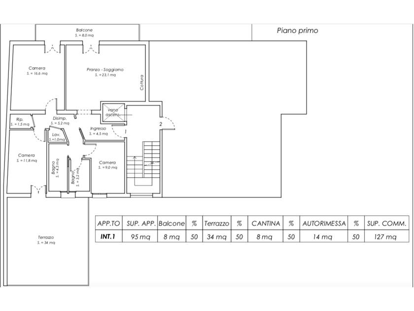
3 Camere 2 Bagni 2 Box/Posti auto 127 m2
Caratteristiche principali
Codice
CA508
Prezzo
355.000,00 EUR
Classe
D
Locali
5
Altre caratteristiche e accessori
Stato Immobile
Ristrutturato
Grado
Signorile
Posizione
Centro
Panorama
Vista Aperta
Piano
Primo
Orientamento
Sud Nord
Totale Piani
Cinque
Lati Liberi
2
Giardino
No
Arredi
Non Arredato
Tipo Soggiorno
Soggiorno
Tipo Cucina
Angolo Cottura
Riscaldamento
Centralizzato
Tipo Riscaldam.
Caldaia
Tipo Impianto
Radiatori
Acqua Calda
Autonoma
Raffrescamento
Predisposizione
Infissi
PVC Triplo Vetro
Serramenti
Nuovo
Persiana
Tapparella PVC
Pavim. Giorno
Ceramica
Pavim. Notte
Ceramica
Pavim. Cucina
Ceramica
Pavim. Bagno
Ceramica
Accesso Disabili
Nessuna Barriera
Accessori
Aria Condizionata, Ascensore, Cancello Elettrico, Doppi Vetri, Impianto Satellitare, Lavanderia, Porta Blindata, Ripostiglio
Proponiamo in vendita appartamento al primo piano così composto:
ingresso, soggiorno con angolo cottura, balcone, disimpegno notte, 3 camere, due bagni, lavanderia, ripostiglio e ampio terrazzo.
Palazzina servita da ascensore.
Completano l'immobile garage e cantina.
Cookie preference