ItalianoEnglish
8 Camere 3 Bagni 700 m2
Caratteristiche principali
Codice
SL187_B
Prezzo
390.000,00 EUR
Classe
VA
Locali
11
Altre caratteristiche e accessori
Stato Immobile
Ristrutturato
Panorama
Vista Aperta
Lati Liberi
4
Giardino
Privato
Tipo Soggiorno
Salone
Tipo Cucina
Abitabile
Riscaldamento
Autonomo
Tipo Impianto
Altro
Acqua Calda
Autonoma
Infissi
Legno
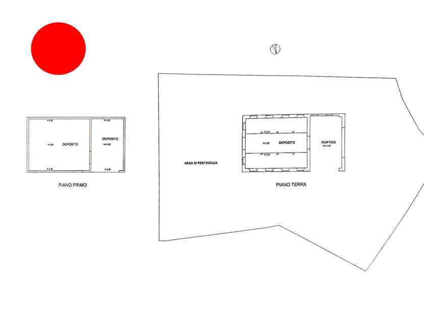
Sulle prime colline di Sassuolo, disponiamo di prestigiosa villa padronale unica nel suo genere. Posta in posizione dominante gode di una splendida vista panoramica. Completano la proprieta' due fabbricati a servizio dell'abitazione principale catastalmente denominati depositi (identificati coi colori rosso e giallo.
Su un lotto di 26.000 mq di terreno di proprietà di cui 5.000 mq adibito a verde intorno alla villa recintato , e il restante terreno in parte seminativo e boschivo tutto pianeggiante e sempre manutentato
NOSTRA ESCLUSIVA
Cookie preference